ご成約済 VILLA SHAKUNAGE A棟

賃料
一戸建
間取
2LDK
敷金
2ヶ月
礼金
1ヶ月
所在地 長野県北佐久郡軽井沢町長倉
VILLA SHAKUNAGE
交通 しなの鉄道中軽井沢駅 徒歩2300m 徒歩29分

物件概要

築年月 1974/1 新築/中古
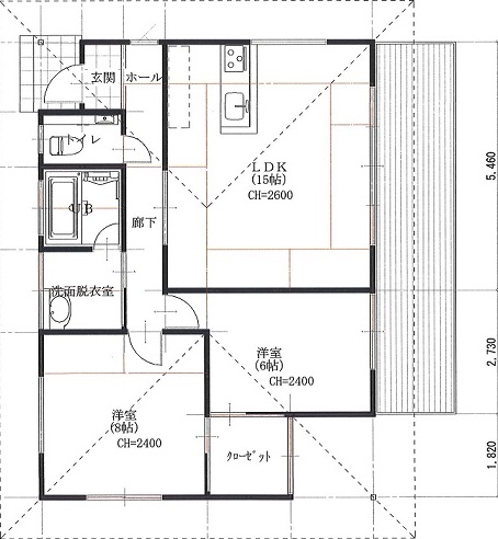
面積 67.91m² 計測方式 壁芯
バルコニー 向き 南西
建物階数 地上1階  部屋階数 1階
部屋/区画番号 A 総戸/区画数 2
建物構造 木造
敷地全体面積 延べ床面積 67.91m²
管理形態 自主管理  管理人無 
間取内容 1階LDK15畳1室  1階洋室8畳1室  1階洋室6畳1室        
住宅保険料 20000円 2年 修繕積立金
駐車場 空有 駐車料:2台分有・賃料に含まれます。 取引態様 一般
引渡/入居時期 現況 賃貸中
周辺環境 軽井沢中部小学校  軽井沢中学校
設備・条件 楽器不可 ペット相談可 平坦地 IHコンロ 追い焚き シャワー バス・トイレ別 温水洗浄便座 床暖房 室内洗濯機置き場 地デジ対応 TVモニタ付インターホン プロパンガス 公営水道 駐車場有 庭(専用庭) 複層ガラス スーパーツルヤに近い ・賃貸保証加入必須 ・ペット飼育の場合は敷金3箇月 ・猫飼育不可
物件番号 CK-147
自社物 状態 成約

しなの鉄道「中軽井沢駅」から南西方向へ約2.3㌔の場所にあります今年リノベーションしたばかりの賃貸一戸建てのご紹介です。軽井沢バイパスから少し南方向へ入った場所にあり、スーパーツルヤまで約900㍍という利便性の良いところにございます。A棟・B棟の2棟ございますが、特にA棟は南側の眺望が優れており、落ち着いた基調の床やアクセントクロス、ゆったりウォークインクローゼットもあり、更には床暖房もあるので年間を通じて快適にお過ごし頂けます。
HPをご覧のお客様へ:お陰様でご成約済となりました。沢山のお問い合わせ有難うございました。

関連物件

  • ご成約済♪ つくしヶ丘貸家3LDK
    北佐久郡軽井沢町 長倉

    しなの鉄道中軽井沢駅
  • ご成約済 大日向 貸家2SDK
    北佐久郡軽井沢町 長倉

    しなの鉄道信濃追分駅
  • ご成約済 ロイヤルビレッジ軽井沢D棟3LDK
    北佐久郡軽井沢町 軽井沢

    しなの鉄道軽井沢駅
  • ご成約済 中軽井沢 フォレスト軽井沢3LDK
    北佐久郡軽井沢町 長倉

    しなの鉄道中軽井沢駅
  • 御代田 コテージ一の沢2LDK
    北佐久郡御代田町 御代田

    しなの鉄道御代田駅
※物件掲載内容と現況に相違がある場合は現況を優先と致します。

お問合わせ

ユーアイトラスト株式会社 〒389-0104 長野県北佐久郡軽井沢町軽井沢東9番地2 TEL: 0267-42-3711 FAX: 0267-42-1546 営業時間:AM9:00~PM6:00 休日:毎週木曜日 (ご来店下さる場合は、事前にご連絡下さい。)

    お名前 必須

    メールアドレス 必須

    題名

    メッセージ本文